شقة (2+1) للبيع في ساراندا، ألبانيا مع إطلالة على البحر

Sarandë, Albania 3,506 الآراء أبريل 14, 2024

178,430€ Sold

ملخص
آخر تحديث أبريل 14, 2024
فئة Apartment
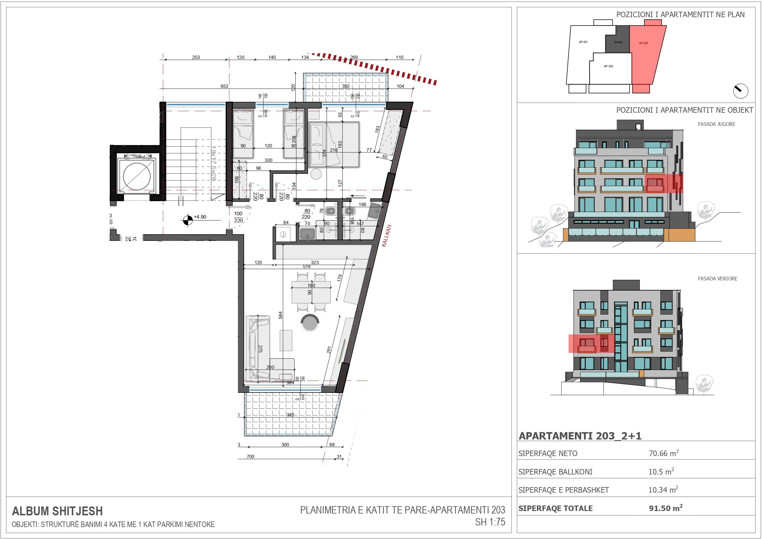
مربع 92 م²
ارقام الغرف 2
عدد الحمامات 2
سعر 178,430€
وصف
  1. للبيع شقة 2+1 في الطابق الأول من مبنى بمساحة إجمالية تبلغ 91.5 متر مربع، مما يوفر فرصة استثمارية جيدة للغاية. تقع بالقرب من الطريق الرئيسي وعلى بعد بضع دقائق فقط من وسط المدينة مما يجعلها سهلة الوصول. مع غرفتي نوم، وحمامين، وبالكونين، فهي توفر خطة معيشة مريحة.

البالكون في غرفة المعيشة وغرفة النوم هو قيمة إضافية للشقة، بدءًا من الإضاءة الطبيعية والاستمتاع بالهواء الرائع الذي يقدمه مدينة سارندا الجميلة. هذه الشقة هي فرصة ممتازة لأولئك الذين يرغبون في تحسين إمكانياتهم والوصول إلى فرص استثمارية.



شارك هذا العقار:

وكالة الاتصال
اتصال